EduSahara™ Worksheet
Name : Chapter Based Worksheet
Chapter : Perimeter and Area of Plane Figures
Grade : ICSE Grade VI
License : Non Commercial Use
Question 1
1.
If the inner length, inner breadth and width of a rectangular path are 8.00 cm, 7.00 cm and 1.40 cm respectively, the area of the rectangular path =
  • (i)
    52.84 sq.cm
  • (ii)
    46.84 sq.cm
  • (iii)
    54.84 sq.cm
  • (iv)
    44.84 sq.cm
  • (v)
    49.84 sq.cm
Question 2
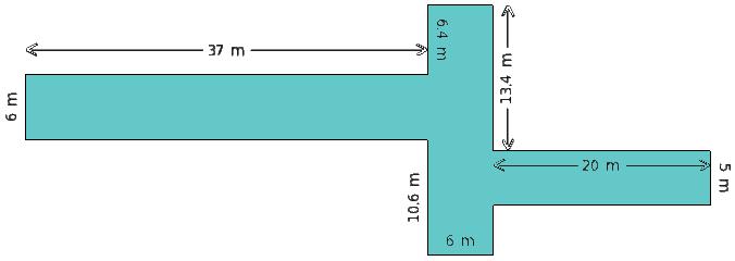
2.
Find the perimeter of the shaded region given below
  • (i)
    171.00 m
  • (ii)
    158.00 m
  • (iii)
    152.00 m
  • (iv)
    164.00 m
  • (v)
    190.00 m
Question 3
3.
If the length and perimeter of a rectangle are 17.00 cm and 66.00 cm respectively, the area of the rectangle =
  • (i)
    272.00 sq.cm
  • (ii)
    246.00 sq.cm
  • (iii)
    269.00 sq.cm
  • (iv)
    289.00 sq.cm
  • (v)
    290.00 sq.cm
Question 4
4.
Find the area of the shaded region given below
  • (i)
    832.00 sq.m
  • (ii)
    856.00 sq.m
  • (iii)
    872.00 sq.m
  • (iv)
    844.00 sq.m
  • (v)
    879.00 sq.m
Question 5
5.
Find the area of the shaded region given below
  • (i)
    386.00 sq.m
  • (ii)
    371.00 sq.m
  • (iii)
    414.00 sq.m
  • (iv)
    379.00 sq.m
  • (v)
    403.00 sq.m
Question 6
6.
If the breadth and perimeter of a rectangle are 14.00 cm and 66.00 cm respectively, the length of the rectangle =
  • (i)
    24.00 cm
  • (ii)
    14.00 cm
  • (iii)
    22.00 cm
  • (iv)
    16.00 cm
  • (v)
    19.00 cm
Question 7
7.
If the breadth and area of a rectangle are 13.00 cm and 195.00 sq.cm respectively, the perimeter of the rectangle =
  • (i)
    61.00 cm
  • (ii)
    59.00 cm
  • (iii)
    56.00 cm
  • (iv)
    51.00 cm
  • (v)
    53.00 cm
Question 8
8.
If the width of a square path is 0.50 cm and outer side is 7.00 cm, the area of the square path =
  • (i)
    13.00 sq.cm
  • (ii)
    10.00 sq.cm
  • (iii)
    16.00 sq.cm
  • (iv)
    8.00 sq.cm
  • (v)
    18.00 sq.cm
Question 9
9.
Find the perimeter of the shaded region given below
  • (i)
    204.00 m
  • (ii)
    201.00 m
  • (iii)
    168.00 m
  • (iv)
    170.00 m
  • (v)
    186.00 m
Question 10
10.
Find the perimeter of the shaded region given below
  • (i)
    144.00 m
  • (ii)
    132.00 m
  • (iii)
    147.00 m
  • (iv)
    118.00 m
  • (v)
    119.00 m
Question 11
11.
Find the area of the shaded region given below
  • (i)
    280.00 sq.m
  • (ii)
    285.00 sq.m
  • (iii)
    256.00 sq.m
  • (iv)
    264.00 sq.m
  • (v)
    297.00 sq.m
Question 12
12.
    • 258647.5886 sq.cm
    • =
  • (i)
    26.86476 sq.m
  • (ii)
    23.86476 sq.m
  • (iii)
    25.86476 sq.m
  • (iv)
    24.86476 sq.m
  • (v)
    27.86476 sq.m
Question 13
13.
    • 67249.5000 sq.mm
    • =
  • (i)
    672.49500 sq.cm
  • (ii)
    674.49500 sq.cm
  • (iii)
    671.49500 sq.cm
  • (iv)
    673.49500 sq.cm
  • (v)
    670.49500 sq.cm
Question 14
14.
If the side of a square is 19.00 cm, the area of the square =
  • (i)
    361.00 sq.cm
  • (ii)
    334.00 sq.cm
  • (iii)
    377.00 sq.cm
  • (iv)
    376.00 sq.cm
  • (v)
    345.00 sq.cm
Question 15
15.
Find the area of the shaded region given below
  • (i)
    568.00 sq.m
  • (ii)
    550.00 sq.m
  • (iii)
    534.00 sq.m
  • (iv)
    555.00 sq.m
  • (v)
    537.00 sq.m
Question 16
16.
Find the perimeter of the shaded region given below
  • (i)
    162.00 m
  • (ii)
    143.00 m
  • (iii)
    160.00 m
  • (iv)
    176.00 m
Question 17
17.
If the length and perimeter of a rectangle are 18.00 cm and 50.00 cm respectively, the breadth of the rectangle =
  • (i)
    5.00 cm
  • (ii)
    8.00 cm
  • (iii)
    7.00 cm
  • (iv)
    9.00 cm
  • (v)
    6.00 cm
Question 18
18.
In an isosceles triangle △ABC, if BC = 20 cm, CA = AB and perimeter is 54 cm, then side AB =
  • (i)
    20.00 cm
  • (ii)
    14.00 cm
  • (iii)
    17.00 cm
  • (iv)
    22.00 cm
  • (v)
    12.00 cm
Question 19
19.
If the outer and inner sides of a square path are 10.00 cm and 8.00 cm respectively, the area of the square path =
  • (i)
    31.00 sq.cm
  • (ii)
    39.00 sq.cm
  • (iii)
    36.00 sq.cm
  • (iv)
    41.00 sq.cm
  • (v)
    33.00 sq.cm
Question 20
20.
If the side of a square is 16.00 cm, the perimeter of the square =
  • (i)
    61.00 cm
  • (ii)
    59.00 cm
  • (iii)
    64.00 cm
  • (iv)
    67.00 cm
  • (v)
    69.00 cm
Question 21
21.
If the length and breadth of a rectangle are 11.00 cm and 10.00 cm respectively, the perimeter of the rectangle =
  • (i)
    42.00 cm
  • (ii)
    39.00 cm
  • (iii)
    45.00 cm
  • (iv)
    47.00 cm
  • (v)
    37.00 cm
Question 22
22.
If the width of a square path is 1.50 cm and inner side is 5.00 cm, the area of the square path =
  • (i)
    36.00 sq.cm
  • (ii)
    34.00 sq.cm
  • (iii)
    44.00 sq.cm
  • (iv)
    39.00 sq.cm
  • (v)
    42.00 sq.cm
Question 23
23.
If the inner length, inner breadth, outer length and outer breadth of a rectangular path are 9.00 cm, 8.00 cm, 10.60 cm and 9.60 cm respectively, the area of the rectangular path =
  • (i)
    26.76 sq.cm
  • (ii)
    34.76 sq.cm
  • (iii)
    32.76 sq.cm
  • (iv)
    29.76 sq.cm
  • (v)
    24.76 sq.cm
Question 24
24.
If the length and area of a rectangle are 12.00 cm and 120.00 sq.cm respectively, the breadth of the rectangle =
  • (i)
    7.00 cm
  • (ii)
    5.00 cm
  • (iii)
    10.00 cm
  • (iv)
    13.00 cm
  • (v)
    15.00 cm
Question 25
25.
If the inner length, inner breadth, outer length and outer breadth of a rectangular path are 10.00 cm, 9.00 cm, 13.60 cm and 12.60 cm respectively, the width of the rectangular path =
  • (i)
    2.80 cm
  • (ii)
    3.80 cm
  • (iii)
    1.80 cm
  • (iv)
    9.80 cm
  • (v)
    0.80 cm
    Assignment Key

  •  1) (v)
  •  2) (iv)
  •  3) (i)
  •  4) (ii)
  •  5) (i)
  •  6) (v)
  •  7) (iii)
  •  8) (i)
  •  9) (v)
  •  10) (ii)
  •  11) (i)
  •  12) (iii)
  •  13) (i)
  •  14) (i)
  •  15) (ii)
  •  16) (iii)
  •  17) (iii)
  •  18) (iii)
  •  19) (iii)
  •  20) (iii)
  •  21) (i)
  •  22) (iv)
  •  23) (iv)
  •  24) (iii)
  •  25) (iii)