EduSahara™ Worksheet
Name : Chapter Based Worksheet
Chapter : Perimeter and Area
Grade : ICSE Grade VII
License : Non Commercial Use
Question 1
1.
If the outer length, outer breadth and width of a rectangular path are 13.80 cm, 10.80 cm and 2.40 cm respectively, the area of the rectangular path =
  • (i)
    95.04 sq.cm
  • (ii)
    90.04 sq.cm
  • (iii)
    100.04 sq.cm
  • (iv)
    98.04 sq.cm
  • (v)
    92.04 sq.cm
Question 2
2.
Find the perimeter of the shaded region given below
  • (i)
    191.00 m
  • (ii)
    146.00 m
  • (iii)
    172.00 m
  • (iv)
    168.00 m
  • (v)
    150.00 m
Question 3
3.
If the perimeter of a square is 44.00 cm, the area of the square =
  • (i)
    121.00 sq.cm
  • (ii)
    134.00 sq.cm
  • (iii)
    146.00 sq.cm
  • (iv)
    105.00 sq.cm
  • (v)
    99.00 sq.cm
Question 4
4.
If the areas of inner and outer squares of a square path are 81.00 sq.cm and 100.00 sq.cm respectively, the area of the square path =
  • (i)
    24.00 sq.cm
  • (ii)
    16.00 sq.cm
  • (iii)
    22.00 sq.cm
  • (iv)
    14.00 sq.cm
  • (v)
    19.00 sq.cm
Question 5
5.
If the outer and inner sides of a square path are 7.00 cm and 6.00 cm respectively, the width of the square path =
  • (i)
    7.50 cm
  • (ii)
    2.50 cm
  • (iii)
    8.50 cm
  • (iv)
    0.50 cm
  • (v)
    1.50 cm
Question 6
6.
If the inner length, inner breadth and width of a rectangular path are 8.00 cm, 7.00 cm and 2.10 cm respectively, the area of the rectangular path =
  • (i)
    85.64 sq.cm
  • (ii)
    77.64 sq.cm
  • (iii)
    80.64 sq.cm
  • (iv)
    75.64 sq.cm
  • (v)
    83.64 sq.cm
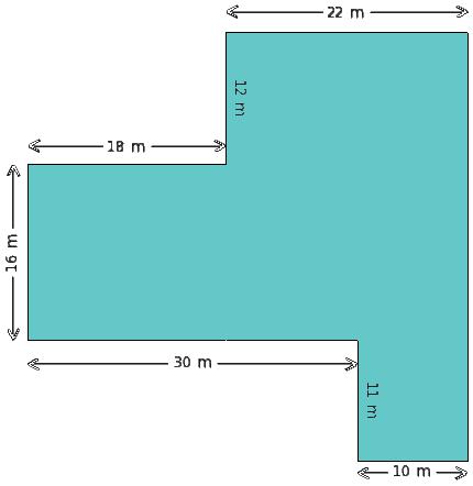
Question 7
7.
Find the area of the shaded region given below
  • (i)
    539.00 sq.m
  • (ii)
    521.00 sq.m
  • (iii)
    530.00 sq.m
  • (iv)
    534.00 sq.m
  • (v)
    562.00 sq.m
Question 8
8.
If the inner length, outer breadth and area of the outer rectangle of a rectangular path are 8.00 cm, 6.00 cm and 54.00 sq.cm respectively, the area of the rectangular path =
  • (i)
    17.00 sq.cm
  • (ii)
    11.00 sq.cm
  • (iii)
    14.00 sq.cm
  • (iv)
    9.00 sq.cm
  • (v)
    19.00 sq.cm
Question 9
9.
Find the perimeter of the shaded region given below
  • (i)
    165.00 m
  • (ii)
    172.00 m
  • (iii)
    156.00 m
  • (iv)
    158.00 m
  • (v)
    140.00 m
Question 10
10.
Find the perimeter of the shaded region given below
  • (i)
    129.00 m
  • (ii)
    146.00 m
  • (iii)
    162.00 m
  • (iv)
    123.00 m
  • (v)
    161.00 m
Question 11
11.
If the inner length, inner breadth and width of a rectangular path are 10.00 cm, 8.00 cm and 4.00 cm respectively, the outer length of the rectangular path =
  • (i)
    15.00 cm
  • (ii)
    23.00 cm
  • (iii)
    21.00 cm
  • (iv)
    13.00 cm
  • (v)
    18.00 cm
Question 12
12.
If the length and area of a rectangle are 20.00 cm and 380.00 sq.cm respectively, the breadth of the rectangle =
  • (i)
    19.00 cm
  • (ii)
    22.00 cm
  • (iii)
    24.00 cm
  • (iv)
    16.00 cm
  • (v)
    14.00 cm
Question 13
13.
Find the area of the shaded region given below
  • (i)
    764.00 sq.m
  • (ii)
    1014.00 sq.m
  • (iii)
    854.00 sq.m
  • (iv)
    1134.00 sq.m
  • (v)
    1074.00 sq.m
Question 14
14.
If the breadth and area of a rectangle are 15.00 cm and 270.00 sq.cm respectively, the perimeter of the rectangle =
  • (i)
    66.00 cm
  • (ii)
    61.00 cm
  • (iii)
    63.00 cm
  • (iv)
    71.00 cm
  • (v)
    69.00 cm
Question 15
15.
If the outer length, inner breadth and width of a rectangular path are 15.40 cm, 9.00 cm and 2.70 cm respectively, the area of the rectangular path =
  • (i)
    134.76 sq.cm
  • (ii)
    131.76 sq.cm
  • (iii)
    117.76 sq.cm
  • (iv)
    126.76 sq.cm
  • (v)
    148.76 sq.cm
Question 16
16.
If the inner length, inner breadth, outer length and outer breadth of a rectangular path are 9.00 cm, 6.00 cm, 15.00 cm and 12.00 cm respectively, the width of the rectangular path =
  • (i)
    1.00 cm
  • (ii)
    2.00 cm
  • (iii)
    3.00 cm
  • (iv)
    4.00 cm
  • (v)
    5.00 cm
Question 17
17.
If the outer side of a square path is 8.00 cm and area of the square path is 15.00 sq.cm, the inner side of the square path =
  • (i)
    5.00 cm
  • (ii)
    6.00 cm
  • (iii)
    7.00 cm
  • (iv)
    9.00 cm
  • (v)
    8.00 cm
Question 18
18.
    • A rectangular field is 42 m by 26 m. It has two paths through its centre, running parallel to its sides.
    • The width of the longer and the shorter paths are 12 m and 14 m respectively.
    • Find the total expense involved in laying tiles on the paths at ₹17.3 per 1 sq.m and laying grass in the remaining portion at ₹20.9 per 1 sq.m.
  • (i)
    ₹20300.80
  • (ii)
    ₹20303.80
  • (iii)
    ₹20301.80
  • (iv)
    ₹20304.80
  • (v)
    ₹20302.80
Question 19
19.
If the inner side of a square path is 8.00 cm and area of the square path is 17.00 sq.cm, the outer side of the square path =
  • (i)
    11.00 cm
  • (ii)
    10.00 cm
  • (iii)
    9.00 cm
  • (iv)
    8.00 cm
  • (v)
    7.00 cm
Question 20
20.
If the inner length, outer breadth and area of the inner rectangle of a rectangular path are 10.00 cm, 18.00 cm and 90.00 sq.cm respectively, the width of the rectangular path =
  • (i)
    4.50 cm
  • (ii)
    6.50 cm
  • (iii)
    5.50 cm
  • (iv)
    2.50 cm
  • (v)
    3.50 cm
Question 21
21.
If the outer side of a square path is 8.00 cm and area of the square path is 39.00 sq.cm, the width of the square path =
  • (i)
    9.50 cm
  • (ii)
    1.50 cm
  • (iii)
    0.50 cm
  • (iv)
    2.50 cm
  • (v)
    3.50 cm
Question 22
22.
If the side of a square is 15.00 cm, the area of the square =
  • (i)
    201.00 sq.cm
  • (ii)
    237.00 sq.cm
  • (iii)
    225.00 sq.cm
  • (iv)
    220.00 sq.cm
Question 23
23.
Find the area of the shaded region given below
  • (i)
    576.00 sq.m
  • (ii)
    581.00 sq.m
  • (iii)
    584.00 sq.m
  • (iv)
    599.00 sq.m
  • (v)
    555.00 sq.m
Question 24
24.
Find the area of the shaded region given below
  • (i)
    554.00 sq.m
  • (ii)
    538.00 sq.m
  • (iii)
    512.00 sq.m
  • (iv)
    555.00 sq.m
  • (v)
    525.00 sq.m
Question 25
25.
If the breadth and area of a rectangle are 11.00 cm and 220.00 sq.cm respectively, the length of the rectangle =
  • (i)
    25.00 cm
  • (ii)
    15.00 cm
  • (iii)
    20.00 cm
  • (iv)
    23.00 cm
  • (v)
    17.00 cm
    Assignment Key

  •  1) (i)
  •  2) (iv)
  •  3) (i)
  •  4) (v)
  •  5) (iv)
  •  6) (iii)
  •  7) (iv)
  •  8) (iii)
  •  9) (iv)
  •  10) (ii)
  •  11) (v)
  •  12) (i)
  •  13) (ii)
  •  14) (i)
  •  15) (ii)
  •  16) (iii)
  •  17) (iii)
  •  18) (v)
  •  19) (iii)
  •  20) (i)
  •  21) (ii)
  •  22) (iii)
  •  23) (ii)
  •  24) (ii)
  •  25) (iii)